株式会社コルティア
TOPページ 賃貸物件 会社案内 お問い合わせ
 TOP >> 賃貸物件 >> 新小岩アーバンライフ
  新小岩アーバンライフ101 
 
 
 
 
 
物件概要 
総武線快速東京駅13分・横須賀線直通

商店街まで徒歩5分
屋根付きの商店街がとても充実しています
たくさんのお店があり買い物が楽しくなります
ペットと楽しく暮らせます(犬不可)
クロス・流し台交換
最寄駅 総武線新小岩駅 徒歩10分
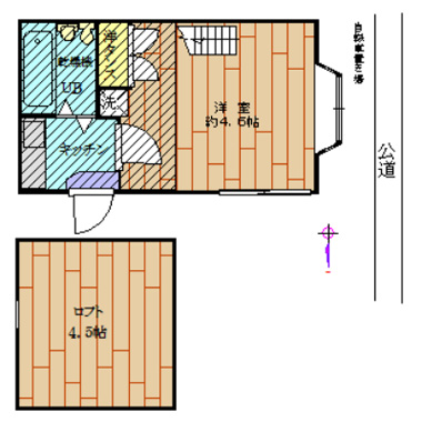
間取り 1K+ロフト
専有面積 14.9u ロフト7.45u
計22.35u
築年月 平成3年2月築
平成16年11月全面改装
賃料 50,000円
管理費
敷金 1ケ月
礼金
住所 江戸川区松島3−5−2
間取詳細 洋室4.6帖
ロフト4.5帖
建物構造 木造モルタル一部鉄骨造2階建
所在階 階数2階/1階建
駐車場
主要採光面 北西角部屋
保険等 火災保険別途加入
更新料 新家賃の1ケ月分
引渡 即入居可
設備・条件 エアコン1基・照明器具
給湯器
備考 北西角部屋
商店街まで徒歩5分
閑静な住宅地

二人・子供入居可
ペット可礼金1ヶ月(犬不可)
鍵交換代 16,500円

★保証会社の審査が必要です
 
※下記の項目 をクリックすると、図面(物件詳細)をPDFファイルで開きます。
図面は印刷できますので、お手元で物件の内容をご覧いただけます。
●図面(物件詳細PDFファイル
 ★下記の項目をクリックすると入居申込書をP  DFファイルで開きます。

日本賃貸保証ご利用は4枚
1入居申込書                 
2入居申込書                 
3賃貸保証委託申込書            
4必要書類
日本セーフテーご利用は2枚

1賃貸保証委託申込書
2外国籍・母国親族連絡票

申込書は印刷できます。記入のうえ必要書類と一緒にFAXして申し込んで下さい


「Adobe Reader」のダウンロードページへ
PDFファイルのご利用には、Adobe社の「Adobe Reader」が必要です。
「Adobe Reader」は、Adobe社のホームページで無償配布しています。
PDFファイルが表示できない場合は、「Adobe Reader」をダウンロードしてご利用ください。
  このページのトップへ
TOPページ | 賃貸物件 | 会社案内 | お問い合わせ